همه دسته بندی ها
نوسازی
اثاثه یا لوازم داخلی صندلی
اثاثه یا لوازم داخلی مبل
اثاثه یا لوازم داخلی مبل
استاد گچ کاری
انرژی خورشیدی
بازسازی اشپزخانه
بازسازی حمام
بازسازی خانه
بازسازی سقف
بازسازی فروشگاه
بالکن شیشه ای
بالکن پیماپن
بام
برش سنگ مرمر
بریکلایر
بستن تراس
بستن تراس چوبی
تخمگذار تصویر زمینه
تخمگذار غشایی
تست زلزله
تعمیر سقف
توری بالکن
درب های فولادی
درب های پی وی سی پنجره
درب پانل امریکایی
درب پنجره پیماپن
دیوار اسلاتینگ
دیوار گچ تخته
رنگ سفید
روکش کابینت اشپزخانه
ساخت استخر
ساخت سقف ساندویچ پانل
ساخت سقف کاشی
ساخت شومینه
ساخت قفسه کت
ساخت مقبره
ساخت و ساز خشن
ساخت کابینت
ساخت کابینت اشپزخانه
ساخت کلید در دست
ساخت کمد لباس
ساخت کمد لباس داخلی
سقف معلق گچ تخته
سقف کاذب
طراح داخلی
طراح داخلی دفتر
طراح داخلی فروشگاه
طراح داخلی کافه
طراحی جامد
طراحی داخلی طراحی
طراحی فنی 3 بعدی
طراحی پروژه معماری
عایق سقف
غلاف
مدل سازی 3 بعدی
مشاوره طراح داخلی
معمار
مگس کش درب
مگس کش پنجره
میز سیمستون
نجار
نقاشی اتاق
نقاشی بیرونی
نقاشی خانه
نقاشی درب پانل امریکایی
نقاشی درهای چوبی
نقاشی کابینت اشپزخانه
نقاشی کابینه
نوسازی
نوسازی خانه
نوسازی کلید در دست
پارکت
پارکت سیستر لاک
پرده اتوماتیک
پرده غلتکی
پرگول
پشه
پلسترر
پنجره پی وی سی
پوشش تک صندلی
پوشش دیوار اینه
پوشش صندلی
پوشش کف اپوکسی کارخانه
پیش ساخته خانگی
پیمانکار
چشم انداز
چمن نورد ساخته شده
چیدمان باغ
کابین دوش
کاشی های تخمگذار
کانتر سنگ مرمر
کانتر سنگ مرمر
کانتر گرانیت
کرکره اتوماتیک
کفپوش سرامیکی
کفپوش سنگ فرش
کفپوش لمینت
کفپوش لمینت پارکت
گربه مگس کش
تعمیر
از بین بردن کولر گازی
اینترکام و اینترکام ویدیویی
باز کردن انسداد لوله کشی
باز کردن فاضلاب
باز کردن هزینه
بازیابی اطلاعات هارد دیسک
برقکار
تخمگذار لوله کشی
تخمگذار لوله کشی در اتاق مهمان
تشخیص نشت اب
تعمیر ایفون
تعمیر باتری سوپاپ
تعمیر برق
تعمیر تلفن سامسونگ
تعمیر تلویزیون
تعمیر تهویه مطبوع
تعمیر توالت
تعمیر درب
تعمیر درب های پنجره و پیماپن
تعمیر درب های چوبی
تعمیر درب پی وی سی
تعمیر دوربین
تعمیر دیگ بخار
تعمیر سقف کاشی
تعمیر سیفون
تعمیر شیر تخلیه
تعمیر صفحه تلویزیون
تعمیر لانه زنبوری
تعمیر ماشین ظرفشویی
تعمیر ماشین لباسشویی
تعمیر مبلمان
تعمیر مخزن فرو رفته
تعمیر میز
تعمیر نوت بوک
تعمیر و نگهداری تهویه مطبوع
تعمیر و نگهداری دیگ بخار
تعمیر پرده
تعمیر پنجره
تعمیر پنجره پی وی سی
تعمیر پنجره پیماپن
تعمیر کابین دوش
تعمیر کابینت اشپزخانه
تعمیر کابینه
تعمیر کالاهای سفید
تعمیر کامپیوتر
تعمیر کانتر
تعمیر کمد کشویی
تعمیر یخچال
تعویض باتری ایفون
تعویض روکش کابینت اشپزخانه
تعویض فیلتر تصفیه اب
تعویض قفل درب
تلویزیون به رهبری جایگزینی
تمیز کردن تهویه مطبوع
تمیز کردن فن و جایگزینی خمیر حرارتی
تمیز کردن مخزن
تنظیم ماهواره
جایگزینی قطعات کامپیوتر و نوت بوک
جداسازی قطعات مبلمان, حمل و نقل و مونتاژ
خدمات ماشین لباسشویی
دوربین امنیتی زنگ هشدار
رفع مبلمان
سیستم های اطفا حریق
سیستم های امنیتی دوربین
سیستم های دوربین
سیستم های هشدار
طراحی پروژه برق
قالب بندی رایانه
قفل ساز باز کردن درب
لوله کش
لوله کشی
مونتاژ بالابر
مونتاژ تلویزیون
مونتاژ دیگ بخار
مونتاژ لانه زنبوری
مونتاژ مبلمان
نصب درب های پانل امریکایی
نصب قرنیز
نصب قرنیز پرده
نصب قفسه ها بر روی دیوار
نصب لوستر
نصب لوله کشی
نصب و راه اندازی برق
نصب و راه اندازی برق
نصب و راه اندازی تصفیه اب
نصب و راه اندازی تهویه مطبوع
نصب و راه اندازی یک ظرف انتن
نصب پرده غلتکی
نصب کابین دوش
نصب کابینت
نصب کابینت اشپزخانه
نصب کاسه توالت
نصب گاز طبیعی
نصب گاز طبیعی در اپارتمان و ساختمان
پر کردن گاز تهویه مطبوع
پروژه گاز طبیعی
پیماپن ویندوز
کابل و خط کشیدن
کشیدن کابل فیبر
کولر گازی خنک نمی شود
سازمان
اجاره صندلی میز
اجاره کیت درام
انیماتور
باند
دروازه بان در وام
دلقک
دکوراسیون اتاق بیمارستان
دکوراسیون بالون
دیسک سوارکار اسب دوانی شدن
ساخت اکواریوم
سازمان افتتاحیه
سازمان تولد
سازمان تولد بزرگسالان
سازمان ختنه
سازمان غذا
سالن های تولد
عکاس
عکاس تولد
عکاس تولد
عکاس کودک
موسیقی زنده
نوازنده
پذیرایی
پیشنهاد ازدواج در قایق بادبانی
کیک بوتیک
کیک تولد
کیک سن
یک پیشخدمت استخدام کنید
شرکت های بزرگ
امنیت خصوصی
بازاریابی دیجیتال و تبلیغات
برش لیزری
برنامه نویسی بازی
برنامه نویسی طراحی وب
بهداشت و ایمنی شغلی
تحلیل اس پی اس اس
تحلیل اطلاعات
ترجمه انگلیسی
ترجمه انگلیسی
ترجمه روسی
ترجمه عربی
ترجمه قسم خورده
ترجمه همزمان
تعمیر و نگهداری بالابر
تهیه یک نمایش
توزیع بروشور
توسعه اپلیکیشن اندروید
توسعه اپلیکیشن موبایل
توسعه دهنده نرم افزار مستقل
توسعه نرم افزار
تولید تی شرت
تولید سویشرت
تولید لباس
تولید موسیقی
ثبت علامت تجاری
ثبت نام
جستجوگرها سازگار نوشتن مقاله
حفاظت ویژه
خدمات جستجوگرها
راه اندازی یک شرکت
راه اندازی یک شرکت خصوصی
ساخت وب سایت
ساختمان سایت و مدیریت اپارتمان
طراحی اتوکد
طراحی بروشور
طراحی بسته بندی
طراحی بنر
طراحی رسانه های اجتماعی
طراحی سایت
طراحی لوگو
طراحی مدار الکترونیکی
طراحی پوستر
طراحی کاتالوگ
طراحی کارت ویزیت
طراحی گرافیک
علامت های پلکسی
فیلمبردار
لباس کار
مترجم قسم خورده
مدل مد زنانه
مدیریت و مشاوره رسانه های اجتماعی
مشاور تجارت الکترونیک
مشاور ویزا
مشاوره
مشاوره تجارت خارجی
مشاوره تهیه رزومه
مشاوره رسانه های اجتماعی
مشاوره و مدیریت تبلیغات گوگل ادوردز
مشاوره کوسگب
میزبان نمایشگاه
نقاشی تصویر
نقاشی دیواری
نقاشی کارتونی
نوشتن مقالات به زبان انگلیسی
ویرایشگر ویدیو
چاپ 3 بعدی
چاپ بروشور
چاپ تی شرت
چاپ دعوت نامه
چاپ دیجیتال
چاپ مطبوعات چاپ
کارشناس رسانه های اجتماعی
کارشناس فتوشاپ
کارگزار گمرکی
کاشت و ساخت قرارداد نساجی
کانون تبلیغات
کپی رایتر
گرافیتی
عروسی
اجاره لباس عروسی
اجاره ماشین عروس
استخدام یک افسر ازدواج نماینده
دوخت لباس عروس
سازمان حنا
سازمان عروسی
سازمان نامزدی
سازمان پیشنهاد ازدواج
سالن عروسی
سالن های حنا
شام عروسی
عکاس عروسی
عکاس نامزدی
عکاسی در فضای باز
عکس و فیلم هواپیماهای بدون سرنشین
فیلمبرداری
منشور قایق بادبانی
مکانهای نامزدی
گروه عروسی
گریم
گفت: سازمان
سلامتی
ارضا روی صورت
ازدواج درمانی
ازدواج درمانی اینترنتی
اسکورت
امبر
اورژانس خصوصی
بازی خواهر
تاتو خالکوبی
تامین مو
تحصیلات ویژه
تعلیم و تربیت اینترنتی
حذف
حذف موهای مردانه
خانواده درمانی
خدمات مراقبت در منزل
خواهر بازی انگلیسی
درمان اینترنتی
درمان جنسی
درمان جنسی
رنگ مو
روان درمانی
روانشناس
روانشناس اینترنتی
روانشناس بالینی
روانشناس متخصص
روانشناس کودک
زبان و گفتار درمانی اینترنتی
زبان و گفتاردرمانی
زوج درمانی
ساخت لاک ناخن ثابت
ساخت ناخن مصنوعی
سملینگک
طراحی مد
فیزیوتراپی در خانه
فیزیوتراپیست
ماساژ (برای زنان)
ماساژ (برای مردان)
ماسک همیشگی
متخصص انرژی زیستی
متخصص تغذیه
متخصص تغذیه اینترنتی
مدل مو
مراقبت از بیمار
مراقبت از بیمار در خانه
مراقبت از بیمار و سالمندان
مراقبت از سالمندان
مراقبت از کودک
مراقبت از کودکان و یاور خانه
مربی زندگی
مربی زندگی
مربی شخصی
مشاور خانواده
مشاور روانشناسی
مشاور روانشناسی اینترنتی
مشاور سبک
مشاوره طالع بینی
موی عروس
میکروبلیدینگ
نفس درمانی
همراه بیمارستان
هیپنوتیزم درمانی
پداگوگ
پدیکور مانیکور (برای زنان)
پدیکور مانیکور (برای مردان)
پرستار
پرستار در خانه
کانتور ابرو
کلاس پیلاتس
گریم
یاور خانه
دوره برخط
اینترنتی, تدریس خصوصی
تدریس خصوصی اسپانیایی
تدریس خصوصی انگلیسی
تدریس خصوصی ایتالیایی
تدریس خصوصی ترکیه
تدریس خصوصی در حساب دیفرانسیل و انتگرال
تدریس خصوصی روسیه
تدریس خصوصی ریاضی دبیرستان
تدریس خصوصی ریاضیات
تدریس خصوصی ریاضیات ال جی اس
تدریس خصوصی ریاضیات دبیرستان اینترنتی
تدریس خصوصی ریاضیات مدرسه ابتدایی
تدریس خصوصی زیست شناسی
تدریس خصوصی شیمی
تدریس خصوصی عربی
تدریس خصوصی فرانسوی
تدریس خصوصی فیزیک
تدریس خصوصی مدرسه ابتدایی
تیت ایت تدریس خصوصی ریاضیات
درس خواندن اینترنتی
درس پیانو
درس گیتار اینترنتی
دوره اینترنتی ترکیه برای خارجی ها
دوره حسابداری اینترنتی
دوره دیکشنری برخط
دوره پیلاتیز
مربی اینترنتی
مربی دانشجویی اینترنتی
مربی شخصی اینترنتی
کلاس یوگا اینترنتی
درس های خصوصی
اتوکد تدریس خصوصی
برنامه نویسی رباتیک
تاریخچه دوره خصوصی
تحصیلات تکمیلی
تدریس ادبیات
تدریس خصوصی بسکتبال
تدریس خصوصی دبستان
تدریس خصوصی ریاضیات ال جی اس
تدریس خصوصی ریاضیات دبستان
تدریس خصوصی عربی
تدریس خصوصی نرم افزار
تدریس خصوصی ورزشی
تدریس ریاضی
تدریس ریاضی دانشگاه
تدریس ریاضی دبیرستان
تدریس زبان انگلیسی
تدریس سواد
تربیت سگ
دبیرستان ریاضی تدریس خصوصی
درس بوکس
درس ترکی برای خارجی ها
درس تنیس
درس خواندن سریع
درس دیکشنری
درس رقص عروسی
درس زیبک
درس شنا
درس صحافی
درس فرمان موتور سیکلت
درس فلوت جانبی
درس نقاشی مداد
درس های خصوصی
درس های خصوصی اسپانیایی
درس های خصوصی به زبان ایتالیایی
درس های خصوصی در
درس های خصوصی در روسیه
درس های خصوصی در فرانسه
درس های خصوصی شطرنج
درس های خوانندگی
درس های رانندگی
درس ویولن
درس پیانو
درس کلارینت
درس گیتار
دروس خصوصی به زبان ترکی
دروس طبل
دوره اکسل
دوره خصوصی شیمی دانشگاه
دوره خصوصی فیزیک دانشگاه
دوره نقاشی
دوره های تخصصی
دوره ویژه حسابداری
دوره ویژه ریاضیات
دوره ویژه ریاضیات
دوره ویژه ریاضیات دی جی اس
دوره ویژه زیست شناسی
دوره ویژه شیمی
دوره ویژه علوم
دوره ویژه فیزیک
دوره ویژه معادلات دیفرانسیل
فصلنامه علمی پژوهشی
مربی تربیت
مربی دانشجویی
مربی شخصی
معلم کلاس درس
نقاش
نقاشی درس های خصوصی
کلاس پیلاتس
کلاس یوگا
کیک بوکس درس
حمل دریایی
اجاره اتوبوس
اجاره انبار
اجاره ماشین با راننده
اجاره مینی بوس
اجاره کامیون
از کار انداختن محموله بین شهرها
از کار انداختن موتورسیکلت بین شهرها
از کار انداختن کالا بین شهرها
انتقال
بار
بازیابی خودکار
تاکسی
ترانسفر فرودگاهی
جابجایی کالا
حرکت دفتر
حمل و نقل بالابر
حمل و نقل بین المللی خانه به خانه
حمل و نقل بین شهرها
حمل و نقل خارج از کشور
حمل و نقل دوبلو
حمل و نقل سگ
حمل و نقل شهری
حمل و نقل محموله ردیابی شده
حمل و نقل موتور سیکلت
حمل و نقل مینی ون
حمل و نقل کامیون
حمل گربه
خانه به خانه حمل و نقل
خانه در حال حرکت
خدمات دانشجویی
خدمات کارکنان
ذخیره سازی کالا
راننده خصوصی
راننده ماشین روزانه
محموله انبار
موتور پیک
پورتر
کامیون یدک کش خودکار
خودرو خودرو
اصلاح دندانه بدون رنگ
تخصص خودرو
تعمیر خودرو
تعمیر و نگهداری خودرو
تعمیر و نگهداری خودرو
تعویض روغن موتور
تغییر واشر
تمیز کردن صندلی ماشین
تمیز کردن ماشین در محل
جایگزینی پد چاپ
خدمات خودرو
خودرو الکتریکی
خودرو سالن مو
رنگ بدن خودکار
رنگ خودکار
زمان بندی تعویض مجموعه
فیلم پنجره خودکار
کیک لهستانی
تمیز کردن
اتو تمیز کردن خشک
باغبان
تمیز کردن باغ
تمیز کردن خانه
تمیز کردن خانه خالی
تمیز کردن خشک
تمیز کردن شیشه
تمیز کردن شیشه را ذخیره کنید
تمیز کردن فرش
تمیز کردن فروشگاه
تمیز کردن فروشگاه
تمیز کردن لانه زنبوری
تمیز کردن محل کار
تمیز کردن پس از ساخت
تمیز کردن پله ها
حذف شیشه بیرونی
حشره کش ها
خانه را ضد عفونی کنید
خدمات اتو در خانه
سمپاشی خانگی
سیستم های گرمایش از کف
شستن صندلی
ضد عفونی
لباسشویی
مراقبت قبر
نظافت دفتر
نظافت ساختمان
نگهداری باغ
نگهداری و نظافت استخر
پاک کردن شیشه
پخت و پز در خانه
پخت و پز در دفتر
کنترل بیماری
پت
تراش, گربه
تراشیدن سگ
راه رفتن سگ
سلمان سگ
مراقبت از گربه
هتل سگ
هتل گربه
پت سلمان
مشتری
خدمات را فراهم کنید
اعضا
خبرها
Kültür İşleri Müdürlüğü 28.10.2022 00:00
Yaz Çocuk Kursları
Park Bahçeler Müdürlüğü 26.10.2022 00:00
Menekşe Sokak Yol Orta Çiçeklendirme Çalışması
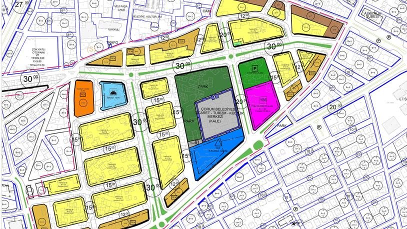
İmar Ve Şehircilik Müdürlüğü 23.10.2022 16:05
Hürriyet Mahallesi İmar Revizyon Çalışması-23-25-28 Adalar
Fen İşleri Müdürlüğü 26.10.2022 00:00
Fen İşleri Müdürlüğü İdare Binası Yapımı